設計ブログ
2021.07.26
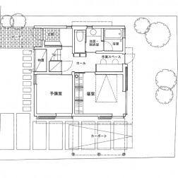
つくば市A様邸完成
スタッフブログ
2021.07.19
地鎮祭といよいよ着工
2021.07.17
成田市で上棟
2021.07.01
今週末完成見学会のna-Basic
2021.06.27
【現場報告】取手市桜が丘のお家
2021.06.22
ベーシックハウス
2021.06.19
【現場報告】取手の大屋根のお家
2021.06.08
外部をどれだけ取り入れられるか
2021.06.01
庭のあり方
もっとお客様の事例をお知りになりたい方へ!
自然と住まい研究所のショールームがつくば松野木にオープン!
自然素材でつくる、心地よい木の家の設計・素材・施工をあなたの五感でお確かめいただけます。